<
>
projects
Ppublications
-012_somnobulum
1992
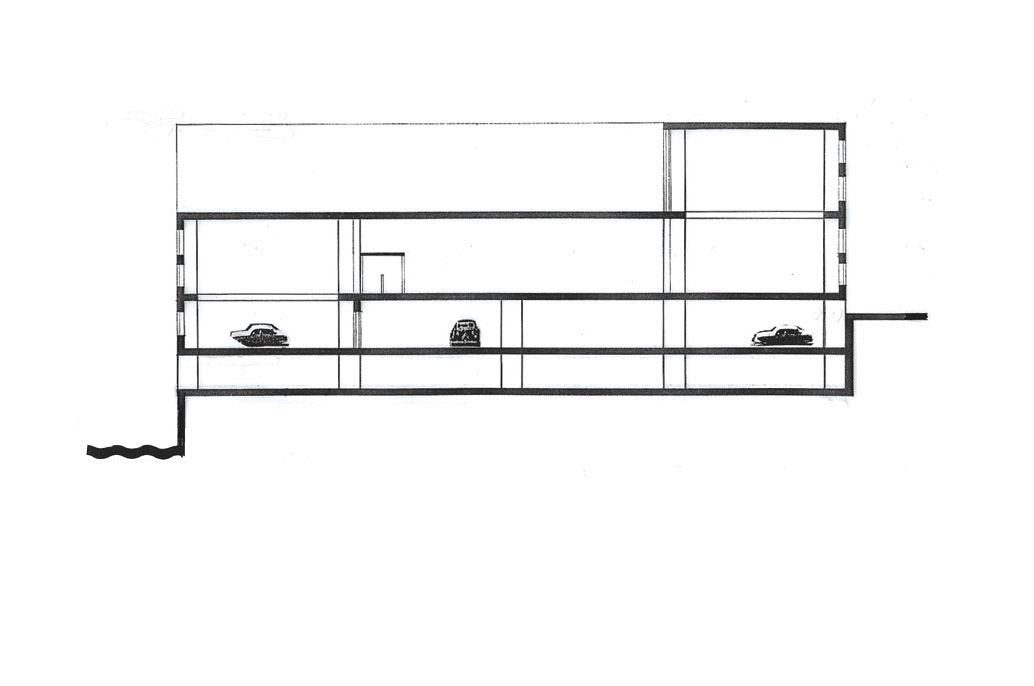
réhabilitation des entrepôts quai d’Austerlitz à Paris en complexe de repos
projet lauréat à l'appel aux jeunes architectes lancé par le ministère de l’équipement
refurbishment of the Austerlitz warehouse in Paris into a laziness complex
1st prize at the open call for ideas to young architects launched by the ministry of equipment