<
>
projects
Ppublications
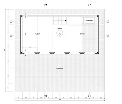
085_maison noire
2006
maîtrise d’ouvrage : Jousse entreprise, Xavier Veilhan, artiste plasticien
maîtrise d’oeuvre : Bona-Lemercier Architectes
co-traîtants : RFR Nicolas Prouvé ingénierie structure
réalisation d’un pavillon en association avec l’artiste Xavier Veilhan, présenté à la FIAC 2006
Grand Palais, Paris
“Une maisonnette comme un écrin, une cabane ranée, une case study house moitié cabanon moitié folie, l’élément décoratif de la façade cohabite avec le minimalisme de la conception d’ensemble. “
- Xavier Veilhan
La Maison Noire est réalisée dans le cadre du projet “Perfect House”, initié par Philippe Jousse, galeriste, et Franck Perrin, critique d’art: des structures habitables conçues par des artistes, designers, architectes.
Il s’agit de concevoir une structure minimale déplaçable qui tiennne lieu d’ habitation individuelle, et dont l’emprise au sol ne dépasse pas 36 m2.
Les modèles doivent pouvoir être réalisés pour un prix avoisinant les 100 000 euros en cinq exemplaires.
design and construction of a pavilion in collaboration with the artist Xavier Veilhan, presenter at FIAC 2006
Grand Palais, Paris
“A little house like a jewelery box, a shed, an experimental house, half cottage, half folly, the decorative element of the façade cohabits with the minimalism of the overall design.“
- Xavier Veilhan
La Maison Noire was made as part of the “Perfect House” project, set up by the gallerist Philippe Jousse, and the art critic Franck Perrin: calling for habitable structures designed by artists, designers, architects. The aim was to design a minimal structure, a moveable individual dwelling with a footprint of less than 36 m2.
Models had a budget of 100,000 euro, for five replicates.