bona - lemercier
<
>
projects
Ppublications
[+]
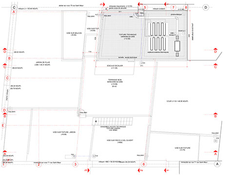
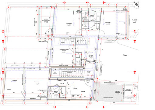
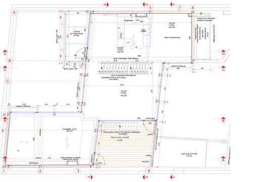
144_rue saint-maur
2016
construction d'un hôtel particulier et d'ateliers
XI Paris
private housing project